大泉学園の3LDK賃貸マンション!|ハウステーション石神井公園店
PC
ホーム
物件検索
お客様の声
スタッフ紹介
オーナー様へ
会社概要
採用情報
来店予約
お問い合わせ
現在
0
件
マイ条件の活用法
お気に入りの活用法
TOPページ
>
練馬区の賃貸情報一覧
>
大泉学園の3LDK賃貸マンション!
物件概要
交通機関
西武池袋線
大泉学園駅
徒歩4分
西武池袋線 保谷 徒歩22分
住所
東京都練馬区東大泉
種別 / 構造
マンション / S造(鉄骨造)
築年数
新築
階層
3階
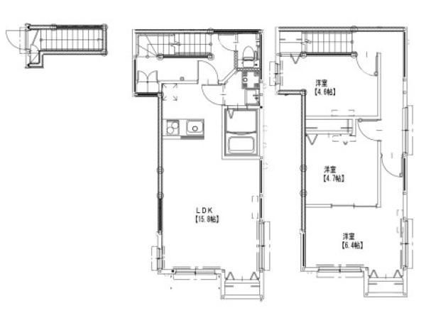
間取り一例
3LDK
設備・条件
の一例
給湯 / バストイレ別 / 追焚機能浴室 / 脱衣所 / 浴室乾燥機 / 洗面所独立 / 温水洗浄便座 / 洗面所にドア / 2面採光 / メゾネット / フローリング / エアコン / クロゼット / シューズボックス / TVインターホン / 宅配ボックス / CATV / ネット使用料不要 / CATVインターネット / システムキッチン / IHクッキングヒーター /
こだわり条件から練馬区の物件を探す
練馬区+給湯
練馬区+バストイレ別
練馬区+追焚機能浴室
練馬区+脱衣所
練馬区+浴室乾燥機
練馬区+洗面所独立
練馬区+温水洗浄便座
練馬区+洗面所にドア
練馬区+システムキッチン
練馬区+IHクッキングヒーター
練馬区+2面採光
練馬区+メゾネット
練馬区+フローリング
練馬区+エアコン
練馬区+クロゼット
練馬区+シューズボックス
練馬区+TVインターホン
練馬区+宅配ボックス
練馬区+CATV
練馬区+ネット使用料不要
練馬区+CATVインターネット
練馬区+LDK15畳以上
練馬区+室内洗濯機置き場
練馬区+保証人不要
練馬区+IT重説対応物件
最近検索した条件一覧
石神井公園北口店
〒177-0041
東京都練馬区石神井町2-15-8
TEL : 0120-952-213
お問合わせNO:
O5671203AN
空室情報の確認や詳細を知りたい方
お問合せはお気軽にお問合せください!
▲ページのTOPへ戻る
お気に入り
閲覧履歴
検索履歴
保存した検索条件
来店予約